Использование электрооборудования
Если вы любите долгое время находиться гараже и мастерить что-либо своими руками, то безусловно у вас соберется необходимый минимум электроинструмента. Чтобы быть к этому готовым, лучше заранее запланировать нагрузку на электросеть и учесть ее перед тем, как сделать электропроводку в гараже. А чтобы правильно рассчитать сечение кабеля, необходимо точно определить, какие электроприборы будут использоваться внутри помещения. Суммарную мощность всех электроприборов нужно умножить на коэффициент 1,2 -для обеспечения запаса мощности в 20%.
Примерная мощность электроинструментов:
Как провести электричество в гаражном кооперативе.
В гаражных массивах, как правило создаются кооперативы и что бы подключить электричество Вам необходимо обратиться к ответственному лицу. Выясните где расположен электрощит и необходимые условия подключения к нему. При этом как правило необходимо:
- Заключить договор электроснабжения с гаражным кооперативом.
- Проложить электропроводку, установить розетки, выключатели и светильники.
- Установить щит и подключить к нему электропроводку гаража.
- Обратится к электрику, обслуживающему гаражи, который при соблюдении всех условий произведет подключение электричества.
Чаще всего прокладывается кабель электропитания по стене ближе к крыше вдоль все линии гаражей. Он крепится в металлических, реже пластиковых трубах. Иногда идет открыто по стене без всякой защиты.

Для подключения отводов на отдельные гаражи, вдоль всей трассы в необходимых местах устанавливаются ответвительные коробки. В них и делается подключение кабеля отходящего на гараж, в который он заводится через отверстие в стене во внутрь на электрический счетчик.

По правиламвсе проходы через стены должны производится в металлических трубах. Или в крайнем случае в металлорукаве, как показано на рисунке. Если электропитание очень сложно или дорого провести и Вам нужен только свет в гараже- читайте нашу статью «Свет в гараже без электричества«.
Источник
Составление чертежа электропроводов
Для правильной и экономной прокладки проводов нужна схема электропроводки в гараже. Схема должна включать размещение розеток, ламп, выключателей. Они должны быть отмечены предельно точно, это нужно при проведении ремонтных работ или элементарной необходимости забить гвоздь.
Начало соединения проходит от распределительного щитка, при этом выключатели соединяются с лампой последовательно. Розетки располагаются перед выключателем. Наилучшее расстояние от пола 1 метр, такое же до потолка.
Далее следует изобразить схему подключения проводки на стены мелом или краской.
Совет! Установите розетку в смотровой яме, это обеспечит удобство использования динамичного светового фонаря и электрических инструментов.
Монтаж гаражной электропроводки ↑
Электрификацию гаража можно условно разделить на два этапа:
- монтаж наружной проводки (от линий электропередач до входа в помещение);
- внутренний монтаж электропроводки в гараже.
Если внутренняя проводка в гараже своими руками чаще всего монтируется, то наружные работы должны обязательно выполняться квалифицированным электриком, имеющим доступ к работе с высоковольтными линиями.
Рассмотрим подробнее, как сделать проводку в гараже и снаружи, и внутри.
Есть два способа передачи электроэнергии от электрического столба до строения: воздушный и подземный. При выборе обычно руководствуются такими факторами, как взаиморасположение гаража с прочими объектами. Если гараж находится на расстоянии большем 25 м от линии электропередач, то для прокладки кабеля по воздуху будет необходима установка дополнительных столбов. При этом высота размещения провода должна быть:
- около постройки – более 2,75 м;
- над пешеходными дорожками – более 3,75 м;
- над дорогой – более 6 м.
Ввод воздушной линии выполняется через стену на высоте не менее 2,75 м. Для этого снаружи гаража на специальных крюках крепятся изоляторы таким образом, чтобы расстояние между кабелями было более 0,2 м.
Перед вводом в гараж провода необходимо заизолировать пластиковыми или резиновыми трубками, а после — все щели тщательно зацементировать или заделать алебастром.
Правильный ввод электричества в невысокий гараж выполняется с помощью трубостойки
У некоторых обладателей невысоких гаражей возникает резонный вопрос, как сделать электропроводку в гараже, если его высота не превышает 2,75 м? Как получить разрешение Энергонадзора на такой проект? Неужели в этом случае придется обходиться без электричества? Ну, конечно же, нет. Просто в этом случае нужно будет установить так называемую трубостойку – стальную трубку, у которой верхний конец загнут на 180° и оснащен приемными изоляторами. Такое приспособление дает возможность ввести электрические провода даже через крышу. Крепится трубостойка к стропилам крыши.
Несколько слов нужно сказать и о подземном способе электрификации гаража. В этом случае кабель располагается в земле и защищается стальным коробом. В гараж провода вводятся через подготовленное отверстие в фундаменте. Кабель, проходящий через точку ввода, обязательно защищается трубой, к тому же для каждого провода подготавливается отдельное отверстие.
Правильный ввод кабеля в гараж через фундамент
В конце работы электрик, осуществляющий наружный монтаж проводки, должен подвести кабели к вводному ящику с электрическим счетчиком и предохранителями. А дальше, если принято решение о самостоятельном проведении освещения внутри гаража, в дело вступает хозяин.
Внутренняя проводка может быть открытой, а может быть и скрытой. Как уже говорилось выше, в металлических и деревянных конструкциях очень проблематично осуществить скрытый монтаж, поэтому для таких гаражей актуален открытый способ. В этом случае кабели крепятся в плинтусах или специальных металлических или пластмассовых коробах. Более эффективны для открытой проводки плоские провода (например, АППВ, ППВ, АППР), а также небронированные защищенные кабели.
На стенах провода крепятся жестяными скобками, гвоздями или дюбелями на расстоянии не более 0,4 м. Разводку обязательно проводят горизонтально, в 20 см от потолка, а коробки приклеиваются или прикручиваются шурупами.
При проведении скрытой проводки необходимо следить за тем, чтобы она была проложена так, что после оштукатуривания не было выпирающих участков
В кирпичных и каменных строениях более популярна скрытая проводка. Лучше всего все работы выполнять до оштукатуривания стен, в этом случае нужно следить лишь за правильной установкой оборудования, то есть, чтобы после оштукатуривания не выглядывали, например, края распределительных коробок. Если все же электрификация выполняется после нанесения штукатурки, то нужно будет вырубить в стенах неглубокие канавки (5-6 мм – более, чем достаточно), которые после укладки в них проводов и их закрепления гвоздями, тщательно заделываются.
Материалы, оборудование
Электропроводку делают закрытой либо открытой. Первая, спрятанная в стене, защищена от влаги и механических воздействий, однако требует значительных физических усилий. Вторую прокладывают «без шума и пыли», поэтому работа проходит очень быстро. Плюс — возможность простой замены элементов или модификации схемы.
Чаще хозяева гаражей выбирают второй вариант. Владельцам помещений на загородных участках лучше отдать предпочтение закрытой электропроводке. Все электрооборудование защищают, используя гофрированные трубы, кабельные каналы. Последние — длинные и узкие пластиковые лотки, крышки которых защелкиваются.
Кабель
После того как схема создана, подсчитать число выключателей и розеток довольно легко. По-другому дело обстоит с кабелем. Чтобы не ошибиться в расчетах, на поверхностях в полном соответствии с чертежом наносят линии прокладки. После выполнения этой операции вооружаются рулеткой, измеряют все участки, потом все значения складывают. Если необходима линия от помещения до столба, то вымеряют и это расстояние. Для внешнего участка используют медный кабель, его сечение — 10 мм2. Он подойдет даже для гаража, переоборудованного в мастерскую.
Для кабеля осветительных приборов будет достаточно сечения 1,5 мм2. Чтобы выбрать проводники для розеток, надо суммировать мощность абсолютно всех подключаемых приборов, затем результат (для запаса прочности) увеличить как минимум на 20%. Используя получившееся значение, рекомендуемое сечение кабеля находят в таблице.
Для большинства электроинструментов хватит провода с сечением 2,5 мм2, но для перестраховки лучше купить кабель понадежнее — с 4 мм2. Последний вариант обычно используют для прокладки отдельной, «особо мощной» линии.
Для электропроводки в гараже выбирают следующие типы кабелей:
- ВВГ;
- NYM;
- ПУНП.
Так как помимо сечения важной характеристикой является количество жил, предпочтение отдают изделиям ВВГ, имеющим от 1 до 5 проводников. Другие их достоинства — широкий температурный диапазон (от-50 до +50°), прочность, влагоустойчивость
Алюминиевые изделия использовать не рекомендуют: независимо от его сечения кабель может ломаться, а в таком случая проводку надо будет рано или поздно менять полностью. При открытом способе монтажа потребуется подсчитать количество гофрированных труб либо кабель-каналов, крепежей, необходимых для фиксации проводки.
Устройства автоматической защиты
Чтобы предотвратить перегрузки по току и КЗ, в линиях устанавливают автоматические выключатели. Для исключения возможности поражения людей током используют специальные устройства — УЗО. Во время разработки схемы электропроводки в гараже необходимо:
- заняться монтажной схемой, которую привязывают к планировке;
- разбить всех потребителей на группы, имеющие свои ветки питания;
- произвести расчет предельных токов и нагрузки в силовых цепях и линиях освещения;
- определить, есть ли необходимость в УЗО и защитных автоматах;
- если они нужны, то подобрать тип устанавливаемого оборудования.
Полезные рекомендации
Укладка проводки требует определенных знаний и опыта работы. Но руководствуясь несколькими рекомендациями и правилами, даже новичок справится с этой задачей.
- При подключении осветительных приборов внутри гаража неплохо продумать освещение и снаружи. Для этого понадобится установить два отдельных выключателя или один двухклавишный.
- Если подключение розетки производится шлейфом, то такая линия должна включать не более трех розеток.
- Устройство защитного отключения защищает не технику, а человека. При коротком замыкании устройство за доли секунды разомкнет цепь и защитит от утечки тока.
- Чтобы защитить цепь от перегрузки или короткого замыкания, используется автоматический выключатель.
- Не допускается скрутка проводов, особенно из разнородных металлов. Вместо устаревшей скрутки с изолентой, необходимо использовать спайку и специальные наконечники, которые можно приобрести в магазине электрики.
- Дополнительное заземляющее устройство, установленное на вводе в распределительный щит, увеличит безопасность работы с электроприборами. Для этого можно использовать металлические прутья диаметра 15-16 мм. Их необходимо соединить стальной лентой и вкопать в землю.

- Если владелец пользуется погребом, то обязательно нужно провести вниз хотя бы один осветительный прибор. Неплохо поместить дополнительное освещение возле лестницы, чтобы спуск и подъем не сопровождался какими-либо проблемами.
- Для ввода электропроводки внутрь гаража воздушным путем отверстие в стене необходимо сделать под наклоном наружу – это позволит предотвратить поступление воды с улицы внутрь.
- При работе на высоте стоит использовать деревянные стремянки или специальные козлы и помосты. Нельзя использовать для подъема металлические бочки, столы, стулья и прочую мебель.


О том, как сделать освещение в гараже самостоятельно, смотрите далее.
Места установки электрооборудования
Кроме светильников сеть освещения гаража предусматривает наличие и других электрических аппаратов и устройств
Их место расположение то же достаточно важно
Места установки розеток и выключателей
Так любая схема электрической проводки в гараже должна предусматривать не только светильники, но и выключатели с розетками.
И здесь тоже есть свои правила:
- Начнем с выключателей. Выключатель общего освещения должен располагаться около входа. Обычно это место справа от входа в гараж. Если гараж имеет два входа, то логично установить два проходных выключателя около каждого из входов.
- Выключатель зонального освещения принято располагать непосредственно в данной зоне. Но это правило не распространяется на освещение смотровой ямы или подвала. Оба этих помещения относятся к особо опасным помещениям. Поэтому в них располагать выключатели нельзя. Исходя из этого выключатели для данных зон следует располагать перед входом в них.
- Выключатели местного освещения обычно расположены в непосредственной близости от самих светильников. Достаточно часто выключателями снабжаются сами светильники.
- Теперь вопрос, касающийся розеток. В первую очередь нам необходимы розетки в слесарной зоне. Обычно их устанавливают над столом. Их количество зависит от количества применяемого электроинструмента и обычно составляет от двух до пяти.
Расположение электрооборудования в смотровой яме
Вторым важным местом где нам могут потребоваться розетки является смотровая яма. Вообще установка розеток в этом помещении не рекомендуется, так как помещение относится к особо опасным. Но при подключении через автомат УЗО и при соблюдении норм по защите от влаги устанавливать розетки здесь можно.
- Хотя значительно более удачным вариантом будет установить розетки вне смотровой ямы. Тем более что они нам тут все равно потребуются, например, для подключения зарядного устройства аккумулятора.
- Кроме того, розетки могут быть установлены в зоне отдыха, для подключения сварочного аппарата или другого стационарного электрооборудования. Их обычно устанавливают в места установки данного оборудования.
Место установки распределительного щита
Перед тем как провести электропроводку в гараже нам следует определиться и с местом установки распределительного щита. От его правильного размещения зависит не только эстетический вид, безопасность, но и стоимость конечных работ. Ведь правильная установка позволит иногда даже очень существенно сэкономить на проводке.
Место установки распределительного щита
Согласно п.7.1.28 ПУЭ распределительные шкафы должны устанавливаться в местах удобных для обслуживания. Если в данной местности возможно подтопления, то высота установки должна исключать затопление щита.
Обычно ввод в гараж осуществляется со стороны входа. Вводной кабель должен быть проложен в стальной трубе. Труба должна исключать возможность попадания и скопления влаги.
Исходя из этого распределительный щит обычно устраивают на входе в гараж. Но это не является правилом. Иногда значительно удобнее расположить распределительный щит ближе к центральной части помещения. Главное, чтоб это было удобно.
Распределительные щиты нельзя обустраивать ближе чем на расстоянии 1 метра от трубопроводов и систем канализации. Согласно п.7.1.28 ПУЭ расстояние до газовых труб или счетчиков так же должно быть не менее одного метра.
Распределительный щит для гаража должен быть выполнен из несгораемых материалов. Поэтому выбирать стоит стальные щиты во множестве представленные на рынке
Кроме того, обратите внимание на наличие в распределительном щите запорного устройства, а также места для установки счетчика. Обычно это место выделяется перегородкой и имеет окошко для просмотра показаний счетчика.
Особенности
Несмотря на площадь, гараж, как правило, имеет сходную схему электрификации с квартирой или частным домом, и сделать разводку своими руками в гараже – вполне посильная задача. Но тем не менее каждый владелец все делает по-своему и не всегда соблюдают правила. При энергоснабжении многое зависит от размера гаража, внутренней отделки и обустройства, но главное требование к электропроводке – безопасность и функциональность.
Электросхема составляется с учетом всех необходимых параметров.
В этом случае все зависит от того, какие приборы и энергопотребители должны находиться в гараже:
- Центральное освещение. Для этого отлично подходит мощная лампа, расположенная под потолком. Специалисты настоятельно рекомендуют выбирать для гаража пылезащищенные светильники и распределить их по периметру гаража таким образом, чтобы они полноценно освещали все помещение, а не только крышу машины.
- Смотровая яма или яма для хранения урожая обязательно должна иметь освещение. Спускаться с фонариком в руках – занятие не совсем удобное. Для полноценного пользования ямой внутри необходимо расположить стационарную подсветку, а также две розетки с защитными крышками. Но если розетками внизу не планируется пользоваться, то стоит рассмотреть вариант в пользу удлинителя. Но не стоит забывать разместить одну розетку наверху, неподалеку от ямы, чтобы можно было без особых проблем протянуть удлинитель вниз.


- Розетки. Их количество зависит от индивидуальных пожеланий. Вполне вероятно со временем понадобится розетка для электрического обогревателя, а также неплохо выделить место для чайника и плитки. Розетки необходимо разместить по углам гаража.
- Электрощиток. Он значительно отличается от домашнего варианта. Щиток в гараже включает в себя счетчик, входной и разделительный автомат. Количество автоматов может быть увеличено при необходимости, но, как правило, для одной линии электропроводки такого количества вполне достаточно.


Варианты монтажа проводки в гараже или мастерской
Конечно, чтобы все получилось так, как надо, делают индивидуальную схему проводки. В ней учитывают предельно допустимую мощность автомата на входе.


Для того чтобы помещение было безопасно для окружающих, имело приличный внешний вид, провода маскируют разными способами:
- используют ПВХ коробки;
- монтируют провода в стены или замазывают их шпатлевкой;
- накладывают на провода пластиковые короба, чтобы сделать их менее заметными.

Если гараж или мастерская вообще не подключены к источнику питания, то нужно вызвать электриков для проведения должных работ. Самому выполнить подключение нельзя, поскольку требуется определенный опыт.
Какой должна быть электропроводка?
Прежде чем приступать к работе, ознакомьтесь с основными требованиями, предъявляемыми к гаражной электропроводке.
Обычно гараж не посещает практически никто помимо его владельца. Поэтому проводка, в первую очередь, должна быть безопасной, надежной и функциональной. Эстетическая же составляющая в большинстве случаев отходит на задний план.
В соответствии с техникой безопасности электропроводка должна быть скрытой. Кабели прокладываются в стенах. Это, как уже отмечалось, повышает безопасность эксплуатации проводки и строения в целом и дополнительно защищает элементы электропроводки от разного рода повреждений.

Кабели прокладываются в стенах
Если ваш гараж построен из металла, проложить скрытую проводку внутри стен не получится. Для таких случаев разработаны специальные приспособления типа гофрированных труб, металлорукавов и прочих коробов, дающих возможность надежно спрятать провода.

Внешняя электропроводка
В целях дополнительного увеличения безопасности работы с разнообразными электрическими приборами, на входе в распределительный щиток настоятельно рекомендуется поместить отдельный заземляющий прибор. Простейшее заземление изготавливается из металлических стержней диаметром порядка 16 мм, вертикально зафиксированных в земле и соединенных по верхушкам полосой из стали. Подобное устройство должно иметь сопротивление, не превышающее показатель в 4 Ом.
Распределительный щиток
В подавляющем большинстве гаражей присутствует сырость. Это обстоятельство вынуждает относить гаражи к категории строений с повышенным уровнем опасности. Ввиду этого выключатели, электророзетки и все светильники должны соответствовать классу защиты на уровне IP44 и выше.

Розетка 413 скрытая 2Р+Е 16А 220В IP44 ИЭК
Если вы планируете оборудовать в своем гараже полноценную мастерскую, предварительно позаботьтесь об обустройстве трехфазного электрического ввода. Для организации такой системы вам понадобится медный электрокабель с сечением порядка 10 мм2 и щиток минимум на 18-20 модулей.
Варианты подключения гаража к электросети
Способов провести электричество в гаражное помещение немало. При этом стоит оговориться, что даже бывалые автолюбители и гаражные завсегдатаи давно забросили эксперименты с незаконными врезками и подключениями. С одной стороны, энергетики научились легко вычислять «халявщиков», с другой стороны, если факт незаконного подключения будет обнаружен товарищами по гаражному кооперативу, дело примет очень болезненный оборот с далеко идущими последствиями. Поэтому действуем по закону:
- Если гараж находится в кооперативе автолюбителей, наиболее простой способ решить проблему, как подключить электричество к гаражу, — написать заявление и решить вопрос с кооперативным электриком;
- Для индивидуальных застройщиков- физических лиц есть возможность заключить договор на подключение к электросетям, после выполнения требований оформить лицевой счет, книжку, и платить за потребленную электроэнергию индивидуально;
- Провести в гаражное помещение электричество можно по схеме «папин друг». В этом случае можно обойтись без электросетевой компании или кооператива, достаточно провести кабель от соседа по гаражу. Понятно, что способы оплаты потребленной энергии и расчеты между сторонами строятся на личных контактах.
Проще всего провести свет на условиях гаражного кооператива. Минимум бюрократии. Время подключения и индивидуальные пожелания в вопросе, как провести электричество в гараж, лучше сразу согласовать с председателем и электриком кооператива.
Последний явится к вам в гараж в самый неподходящий момент, проверит подключение гаража и проводку на наличие «потаенных» розеток, и после долгих разговоров просто подсоединит контакты кабеля в распределительной коробке от общей линии к входному автомату или счетчику. После пломбировки ввода и электросчетчика будет оформлена платежная книжка и учетная карточка- техпаспорт.

При всей простоте и скорости оформления способ провести электричество в гараж от кооперативной электросети не всегда является самой выгодной идеей. Причин, по которым не стоит пытаться провести электричество от кооперативной линии, несколько:
- Воровство средств, уплаченных членами кооператива в счет оплаты за потребленное электричество. Если оплату принимают по квитанциям, растрата или хищение денег неизбежны. Единственным приемлемым вариантом будет оплата на расчетный счет кооператива;
- Коллективный или колхозный способ сбора денег никогда не отличался стопроцентной оплатой членами кооператива за потребленное электричество. Если на территории кооператива существуют частные мастерские или магазины, скорее всего, часть потребленного этими конторами электричества будет оплачиваться из вашего кармана;
- Есть смысл проводить электричество от кооперативной линии, если перечисленные выше проблемы в вашем кооперативе отсутствуют, при этом ответственными лицами предъявляются жесткие, но обоснованные требования к обустройству ввода и подключения.
Упрощенный подход со стороны электрика или председателя в вопросе подключения гаража к электричеству может обернуться очень серьезными проблемами, от пожара до регулярных аварий на линии.

Совет! Самым хлопотным, но самым надежным способом решить вопрос, как провести электричество в гаражное помещение, будет индивидуальное подключение с линии на основании договора с электросетевой компанией.
Принципы проектирования электрических схем для гаражей

Простая схема электропроводки в гараже предусматривает наружное расположение всех элементов, таких как кабель, розетки, распределительные электрощитки и светильники (см. Светильники для гаража). Многие стараются скрыть кабели, укладывая их в стенах перед штукатуркой или закрывая отделочными материалами.
Но практика показала, что такая электросхема гаража не практична и лучшим вариантом будет поверхностная укладка проводки. Для защиты провода в наиболее вероятных местах повреждения используют пластиковые или металлические гофрированные трубки, а для декоративного сокрытия применяются специальные коробы из пластика.
К сведению. Электрическая схема гаража должна быть проложена таким образом, чтобы обеспечить быстрый доступ ко всем элементам для их удобной замены, поскольку очень часто, при активном и разностороннем использовании гаража возникает потребность переноса розеток или элементов освещения на другое место. Открытая проводка исключает возможность её повреждения при сверлении стен.
Особенности организации внутренней проводки
В гараже внутренняя электропроводка может реализовываться следующими способами:
- расположение кабелей производится в открытом виде;
- расположение проводов осуществляется в специальных пластиковых трубах;
- вариант комбинированного проведения проводки.

Вариант размещения проводки внутри гаража
Специалисты утверждают, что для гаражных сооружений самым оптимальным вариантом внутреннего размещения проводки будет именно комбинированный вид. При использовании такого подхода можно все основные узлы электропроводки скрыть элементами из пластика, а обычные провода при помощи крепежных элементов прикрепить к стене.
Монтаж проводки
Пошаговая инструкция по монтажу проводки в гараже включает в себя несколько пунктов, каждый из которых посвящен отдельному виду операций. Все они проводятся в определенной последовательности и начинаются с подготовительных мероприятий.
Подготовительный этап
Пошаговый план содержит следующие обязательные пункты:
- Разметка трасс прокладки кабельных жгутов.
- Проделывание штробов (если электропроводку решено развести скрытым способом в толще стен).
- Обустройство ниш для установки розеток и выключателей.
Отступы при разметке трассы электропроводки
От розеток и выключателей трасса намечается строго вертикально вверх, где под самым потолком устанавливается распределительная коробка. Это позволит в будущем учитывать предполагаемое место прокладки проводов и при необходимости сверления не повредить их.
Если в помещении проложены отопительные трубы – трассы проводки должны располагаться на удалении от них не менее, чем 25 см. Места под розетки намечаются на расстоянии примерно 0,3 метра от пола, а под выключатели – порядка 1,0 метра. Одновременно с этим выдерживается удаление проводов и мест монтажа электроустановочных изделий от косяков дверей и рам окон (оно не должно быть менее 10-15 см). В отличие от жилых квартир, в гаражах выключатели устанавливаются в районе гаражных ворот или калитки. Глубина штробов выбирается в зависимости от толщины кабеля или проводного жгута (согласно ПУЭ этот показатель не должен превышать 2,5 см).
Различные крепежные изделия для кабеля или провода представлены на фото ниже:









Ввод силового кабеля и монтаж электрощита
Если капитальный гараж стоит отдельно от дома – силовой кабель подводится к нему по воздуху (на опорных столбах).
Требования к трассе проводки воздушной линии и ввод в здание
Требования к трассе проводки воздушной линии выглядят так:
- Высота протяжки проводов СИП над проезжей частью – не менее 6 метров.
- Их удаление от земли на участке пешеходной зоны – 3,74 метра.
- Высота расположения точки ввода в гаражное строение – не ниже 2,75 метра.
Воздушный и подземный ввод силового кабеля в гаражный бокс
В кооперативных объединениях часть работ, связанную с подводкой нуля и фазы, берет на себя местная администрация. В этом случае ввод кабеля питания осуществляется от общей линии с наружной стены гаражных боксов.
Подключение щита учета к линии электропередач и ввод электропитания помещение гаража смотрите на видео:
Коммутационные элементы вводного устройства размещаются в электрическом щитке, навешанном на стене строения недалеко от входа. В шкафу размещается следующее коммутационное и защитное оборудование:
- Рубильник (вводный автомат).
- Счетчик учета.
- Линейные автоматические устройства.
- УЗО и шина заземления.
Здесь же может быть установлен самодельный или покупной понижающий трансформатор.


На схеме электрического щитка указываются марка и тип кабеля, соединяющего все эти элементы. Возможны два варианта схемных решений для гаражей:
- В первом случае в помещении не предусмотрена смотровая яма.
- Во втором варианте исполнения придется заложить специальный трансформатор, обеспечивающий питанием 12 или 36 Вольт переносную лампу и светильники в смотровой яме.
Монтаж электрооборудования распределительного шита для установки внутри гаража смотрите на видео:
Внутренняя разводка и освещение смотровой ямы
Внутренний монтаж электропроводки выполняется либо скрытым (в штробах), либо открытым способом – в металлическом рукаве, кабель-канале или гофре.
Монтаж электропроводки в гараже на видео
ОСВЕЩЕНИЕ ГАРАЖА Как самому правильно выполнить электромонтаж Электропроводка в гараже
Электрификация гаража
Электрика в гараже. Разводка электрики своими руками.
10.06.15 Челябинск, Красное поле, гараж
Освещение смотровой ямы необходимо выполнить светильниками с пониженным напряжением на 12, 24 или 36 вольт, в зависимости от приобретенного вами понижающего трансформатора. В качестве источников света нередко применяются светодиодные ленты, рассчитанные на 12 Вольт. В этом случае питание можно брать от АКБ, поскольку потребление у светодиодных элементов мизерное.
Освещение смотровой ямы с пониженным напряжением питания
Схемы и расположение потребителей
Как провести проводку в гараже своими руками? Перед началом работ нужно подобрать схему проводки в гараже своими руками. Схемы электропроводки в гараже бывают разными, в зависимости то того, какая информация требуется тому, кто их смотрит. В электрической технике различают принципиальные схемы и схемы расположения.
Первые должны детально описывать всю электрическую цепь, а вторые – расположение потребителей, с указанием расстояния или так, чтобы можно было ориентироваться по масштабу чертежа. Начнем с принципиальной схемы подключения проводки в гараж, которая требуется в соответствии с последней версией ПУЭ.
Однофазная принципиальная схема электроснабжения гаража показана на рисунке ниже. Для удобства на схеме проводки в гараже использована реальная расцветка проводов (как в обычных кабелях).
Разводка электропроводки в гараже своими руками — схема, фото:
Фазный проводник сети находится под опасным напряжением относительно нейтрали и земли, так как нейтраль обычно заземляется. Однако, для работы устройства защитного отключения (УЗО) необходима защитная земля (PE, protection earth).
ВНИМАНИЕ! Никогда не соединяйте защитную землю с нейтралью! Используйте правильно устроенное заземление. Принцип работы УЗО состоит в использовании дифференциального трансформатора, который складывает входящий (по фазному проводу) и уходящий (по проводу нейтрали) токи. Если изоляция потребителя повреждена и есть замыкание на корпус, то сумма токов фазного провода и нейтрали не равна нулю
А разницу дает как раз ток утечки на землю
Если изоляция потребителя повреждена и есть замыкание на корпус, то сумма токов фазного провода и нейтрали не равна нулю. А разницу дает как раз ток утечки на землю
Принцип работы УЗО состоит в использовании дифференциального трансформатора, который складывает входящий (по фазному проводу) и уходящий (по проводу нейтрали) токи. Если изоляция потребителя повреждена и есть замыкание на корпус, то сумма токов фазного провода и нейтрали не равна нулю. А разницу дает как раз ток утечки на землю.
Возможно, этот ток течет по телу человека! Смертельный ток около 100 мА. А УЗО, показанное на схеме, настроено на ток 5 мА. Таким образом, человек будет защищен, ибо устройство сработает за миллисекунды и разомкнет цепь.
Но это работает только в том случае, когда ток утечки течет помимо дифференциального трансформатора УЗО, а именно в отдельной линии заземления!
Главный автомат обесточивает нашу маленькую сеть на схеме при коротких замыканиях на общей линии (магнитная защита) или в случае большой суммарной перегрузки всех линий (тепловая защита). Также он используется при ремонтах.
Для того, чтобы обеспечить независимость разных потребителей, используется несколько линий, питающихся от одной или нескольких групп. Обычно в частном гараже, как и в квартире, вполне достаточно одной группы. А каждая группа питается от своего автомата в цепи фазы. Это очень удобно при ремонтах.
Автоматы (автоматические выключатели) защищают свои цепи от перегрузок по току и от коротких замыканий. Следует помнить, что УЗО защищает цепи только от токов утечки! От перегрузки по току она цепь не защищает, это делает автоматический выключатель.
Шины, расположенные в щитках, выполняются в виде полос или брусков из медных или латунных сплавов и снабжены отверстиями для проводов, которые затягиваются винтами. Следует сказать, что современная номенклатура электротехнических изделий очень удобна для монтажных работ, если использовать ее грамотно.
Схема трехфазной сети отличается от однофазной только двумя дополнительными фазами и установкой трехфазных (строенных) автоматов и УЗО. Отдельные фазы этой сети разводятся как линии напряжения 220 В совместно с нейтралью. Между любыми двумя фазами напряжение равно 380 В, а фазовый угол в равномерно нагруженной сети равен 120 градусов. При этом ток в нейтрали равен нулю.
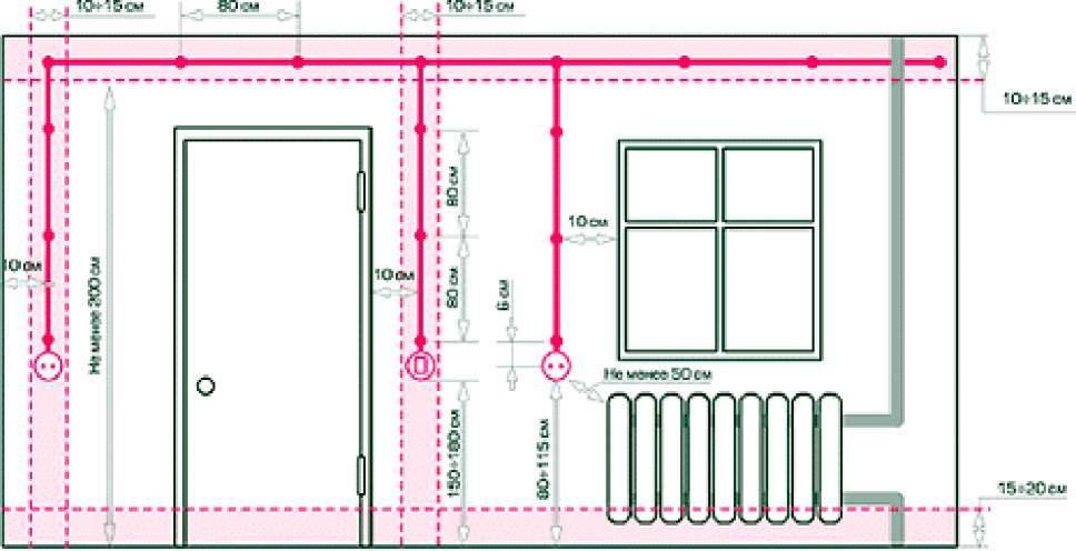
Электричество в гараже своими руками — схема расположения показана на следующем рисунке:
На таких схемах электрики в гараже не обязательно выполнять требования для чертежей по принятым правилам, так как мы делаем их для себя. Главное – это ясность всех обозначений. Вертикальные участки проводки отмечены плюсами с указанием высоты. Это даст возможность легко посчитать длину линий.
На схеме подключения электропроводки в гараже обозначаются условными обозначениями розетки и светильники. Можно добавить выключатели. Все добавляется по месту расположения. Мы еще поработаем над этим документом чуть ниже, когда будем выбирать материалы.




































